---
title: "Afdeling 14A"
description: "1-21"
date: "2026-02-04"
created: "2025-09-16"
---

-

https://maps.google.dk/?q=56.231205,10.2296905

# Afdeling 14A

## Skal vi flytte sammen?

Vi har spændende boliger i hele Aarhus-området. Opret dig på Aarhusbolig i dag, og kom tættere på dit næste hjem.

[Søg bolig i denne afdeling](https://aarhusbolig.dk/soeg-bolig/find-boligafdeling/afdelingspraesentation/?key=289_21&amp;StepBack=true)

## Velkommen til Afdeling 14A

De fine ét-plans parcelhuse fra 1961-62, er beliggende på Oldager og Kærløkken i Lystrup. Hvert hus har egen have på ca. 800 m², så der er gode muligheder for dem med grønne fingre.

## Faciliteter

Info

Læs mere

Parcelhuse opført 1961-1962 i mursten.

Altan/Terrasse/Have

Ja

Alle boligerne har egen have.

Husdyr

Ja

Det er tilladt at holde to husdyr pr. husstand.

Fælles

Ja

Afdelingen har en lille fælles stikvej.

## Antal boliger i afdelingen

Lejligheder

3 værelses

Lejligheder

Lejligheder

4 værelses

Lejligheder

Boligtype

Værelser

Størrelse

Husleje

Indskud/dp

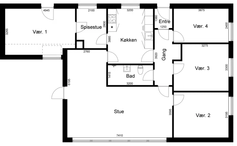
Plantegning

Lejligheder

3

85 m²

8207 kr.

20145 kr.

Lejligheder

4

85 m²

8225 kr.

20145 kr.

![](https://www.bf-ringgaarden.dk/i/MOLIRIMEDIA/93577b4e-292f-4cc1-d7cd-08dd441d052d?width=800)

## Afdelingens afstande til

Indkøbsmuligheder

meter

Offentlig transport

meter

Skole

meter

Institution

meter

## Afdelingsdokumenter

Her finder du nyttig information om din afdeling, såsom husorden, vedligeholdelse af dit lejemål, referater m.m.

###

                                                Husorden

[Afd 14+14A - Ordensregler.pdf](https://www.bf-ringgaarden.dk/p/Files/Boligdata/Afdelinger/Afdeling%2014A%20-21-/Husorden/Afd-14-14A---Ordensregler.pdf)

###

                                                Råderet

[Afd. 14A - Råderetskatalog.pdf](https://www.bf-ringgaarden.dk/p/Files/Boligdata/Afdelinger/Afdeling%2014A%20-21-/R&#xE5;deret/Afd.-14A---R&#xE5;deretskatalog.pdf)

###

                                                Vedligeholdelsesreglement

[Afd. 14A - Vedligeholdelsesreglement.pdf](https://www.bf-ringgaarden.dk/p/Files/Boligdata/Afdelinger/Afdeling%2014A%20-21-/Vedligeholdelsesreglement/Afd.-14A---Vedligeholdelsesreglement.pdf)
                                            [Håndværkerlisten februar 2026.pdf](https://www.bf-ringgaarden.dk/p/Files/Boligdata/Afdelinger/Afdeling%2014A%20-21-/Vedligeholdelsesreglement/H&#xE5;ndv&#xE6;rkerlisten-februar-2026.pdf)

## Placering
