---
title: "Afdeling 14"
description: "1-20"
date: "2026-02-04"
created: "2025-09-16"
---

-
-

https://maps.google.dk/?q=56.226783,10.232575

# Afdeling 14

## Skal vi flytte sammen?

Vi har spændende boliger i hele Aarhus-området. Opret dig på Aarhusbolig i dag, og kom tættere på dit næste hjem.

[Søg bolig i denne afdeling](https://aarhusbolig.dk/soeg-bolig/find-boligafdeling/afdelingspraesentation/?key=289_20&amp;StepBack=true)

## Velkommen til Afdeling 14

Det gamle sogneråd i Lystrup opfordrede i 1956 Ringgården til at bygge på en mindre grund i udkanten af Lystrup. Det blev til disse 2-etagers parcelhuse i Engvangen. Hver grund er på ca. 800 m², så det giver plads til både græsplæne og dyrkning af egne grønsager, hvis man skulle føle for det. I dag ligger afdelingen faktisk midt i Lystrup by.

## Faciliteter

Info

Læs mere

Parcelhuse i 2 etager opført 1957 i mursten.

Altan/Terrasse/Have

Nej

Husdyr

Ja

Det er tilladt at holde to husdyr pr. husstand.

Fælles

Nej

## Antal boliger i afdelingen

Lejligheder

4 værelses

Lejligheder

Boligtype

Værelser

Størrelse

Husleje

Indskud/dp

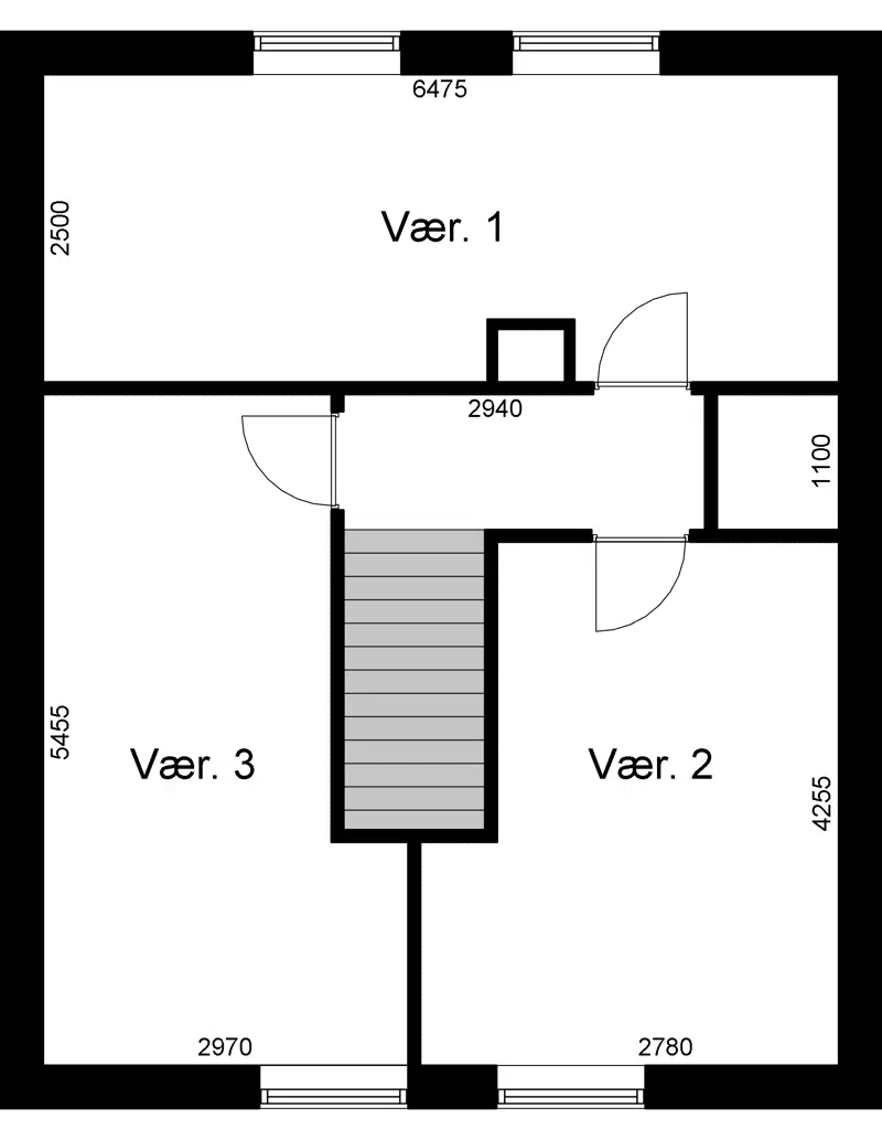
Plantegning

Lejligheder

4

94 m²

9165 kr.

22278 kr.

![](https://www.bf-ringgaarden.dk/i/MOLIRIMEDIA/75eb59af-7c49-4490-d7cf-08dd441d052d?width=800)






![](https://www.bf-ringgaarden.dk/i/MOLIRIMEDIA/75eb59af-7c49-4490-d7cf-08dd441d052d?width=800)

![](https://www.bf-ringgaarden.dk/i/MOLIRIMEDIA/5b3b698d-d544-45e1-d792-08dd441d052d?width=800)

![](https://www.bf-ringgaarden.dk/i/MOLIRIMEDIA/75eb59af-7c49-4490-d7cf-08dd441d052d?width=800)

![](https://www.bf-ringgaarden.dk/i/MOLIRIMEDIA/5b3b698d-d544-45e1-d792-08dd441d052d?width=800)

## Afdelingens afstande til

Indkøbsmuligheder

meter

Offentlig transport

meter

Skole

meter

Institution

meter

## Afdelingsdokumenter

Her finder du nyttig information om din afdeling, såsom husorden, vedligeholdelse af dit lejemål, referater m.m.

###

                                                Husorden

[Afd 14+14A - Ordensregler.pdf](https://www.bf-ringgaarden.dk/p/Files/Boligdata/Afdelinger/Afdeling%2014%20-20-/Husorden/Afd-14-14A---Ordensregler.pdf)

###

                                                Råderet

[Afd. 14 - Råderetskatalog.pdf](https://www.bf-ringgaarden.dk/p/Files/Boligdata/Afdelinger/Afdeling%2014%20-20-/R&#xE5;deret/Afd.-14---R&#xE5;deretskatalog.pdf)

###

                                                Vedligeholdelsesreglement

[Afd. 14 - Vedligeholdelsesreglement.pdf](https://www.bf-ringgaarden.dk/p/Files/Boligdata/Afdelinger/Afdeling%2014%20-20-/Vedligeholdelsesreglement/Afd.-14---Vedligeholdelsesreglement.pdf)
                                            [Håndværkerlisten februar 2026.pdf](https://www.bf-ringgaarden.dk/p/Files/Boligdata/Afdelinger/Afdeling%2014%20-20-/Vedligeholdelsesreglement/H&#xE5;ndv&#xE6;rkerlisten-februar-2026.pdf)

## Placering
